Se você está de olho no maior arranha-céu do mundo e quer entender rapidamente como seria viver ali, as plantas do Senna Tower são seu melhor atalho. Elas mostram, de forma visual, como o prédio se organiza: por onde você entra e sai, como ficam vagas e acessos, onde estão os espaços de lazer e como cada tipologia aproveita as vistas.
A seguir, vamos conduzir você a conhecer mais do empreendimento: localização e acessos, circulação inteligente, áreas de lazer por pavimento e o layout dos apartamentos tipo (conforto, privacidade e praticidade no dia a dia). A ideia é que você consiga se imaginar morando no Senna Tower e escolha a unidade certa com segurança. Vamos começar?
Plantas do Senna Tower: onde tudo começa
A Planta de Situação do Senna Tower mostra onde o prédio será construído em relação ao seu entorno. É como um mapa que posiciona o Senna Tower na cidade, indicando as ruas próximas, os limites do terreno e até mesmo a topografia. Assim, fica fácil começar a pensar em como o prédio vai se integrar à paisagem urbana e ao seu entorno privilegiado.
Afinal, o Senna Tower será erguido na Avenida Atlântica, na Barra Sul de Balneário Camboriú. Essa localização é simplesmente espetacular, com vista para o mar e fácil acesso a tudo o que a cidade oferece. Balneário Camboriú é conhecida por sua infraestrutura de ponta, praias paradisíacas e uma boa qualidade de vida. Não é à toa que a cidade é conhecida como a “Dubai Brasileira” e se tornou um dos destinos mais cobiçados do país para quem busca luxo e qualidade de vida.
Esse é o ponto de partida para entender a grandiosidade do projeto:

Outra planta que ajuda a entender a ocupação do terreno é a Planta de Implantação. Ela mostra a projeção da torre sobre o terreno, as áreas permeáveis, os acessos de veículos e pedestres.
Ou seja, é um detalhamento que apresenta a otimização dos espaços, dos acessos e das áreas verdes, demonstrando um planejamento que valoriza tanto a estética quanto a funcionalidade. Veja só:

Os detalhes do projeto: pavimento por pavimento
Depois da visão geral, o Caderno Legal do Senna Tower apresenta uma série de plantas detalhadas, pavimento por pavimento. Tem planta de subsolo com estacionamento, planta do térreo com área comercial, plantas dos pavimentos de garagem e, claro, as plantas dos pavimentos tipo, que são os andares onde ficam os apartamentos.
Acesso
O 1º Pavimento (Térreo), por exemplo, abrigará o estacionamento comercial, mostrando como o projeto se integra à vida da cidade não apenas com moradia, mas também com serviços. Dê uma olhada:

Infraestrutura
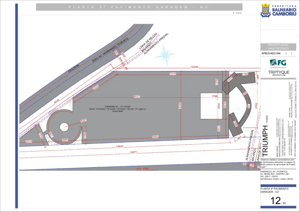
Subindo, temos os pavimentos de garagem, como o G1 (2º Pavimento) e o G2 (3º Pavimento), essenciais para a infraestrutura de um edifício deste porte. Confira essa parte da planta do Senna Tower:


Áreas de lazer
As áreas de lazer e eventos são um show à parte. O 8º Pavimento é dedicado a um Espaço de Eventos, enquanto há quatro pavimentos dedicados ao lazer, com piscinas, academias e outros espaços de convivência.
- Lazer 1 (9º Pavimento): piscina adulto e infantil, espelho d’água, deck com gazebo, salão de festas com cozinha gourmet e lounge, sala de jogos, playground, baby room, quadra poliesportiva, praça da lareira e quiosque gourmet.
- Lazer 2 (10º Pavimento): Piscina adulto aquecida, área externa em deck, sauna seca e úmida, sala de massagem, sala para fitness e pilates/yoga, e um wine bar com espaço gourmet.
- Lazer 3 (59º Pavimento): Academia, pilares, yoga, wine bar, salão de festas e banheiros sociais.
- Lazer 4 (132º Pavimento): Uma área de lazer de uso comum, ainda mais exclusiva.
É muita opção para relaxar, se exercitar e socializar. E o melhor de tudo é que essas áreas foram pensadas para atender a todas as idades e estilos de vida.
Veja só:





Apartamentos Tipo
Finalmente, você pode ver os apartamentos! As plantas dos pavimentos tipo nos mostram a distribuição dos apartamentos, a metragem de cada cômodo e a localização dos banheiros e cozinhas. É possível ter uma ideia de como será a vida de quem morar no Senna Tower. Veja, por exemplo, a planta do 12º Pavimento (Tipo 01) e do 13º Pavimento (Tipo 02).


De forma geral, os apartamentos serão espaçosos e contarão com:
- Hall social e de serviço: para garantir a privacidade e a funcionalidade.
- Área de serviço e dependência de empregada com banheiro: para praticidade no dia a dia.
- Cozinha gourmet com ponto para churrasqueira a gás: para quem ama cozinhar e receber amigos.
- Living: ambientes amplos e integrados para o convívio.
- Suítes: a maioria dos apartamentos terá 05 suítes, sendo uma suíte master com banheira de hidromassagem e closet, para relaxar de verdade.
- Circulação íntima e de serviço: para otimizar o fluxo dentro do apartamento.
Tecnologia
Um dos melhores pontos do Senna Tower é a incorporação de tecnologia de ponta para garantir a segurança e o conforto dos seus ocupantes. O memorial descritivo menciona a localização do amortecedor de massa em pavimentos técnicos específicos (Pavimento Área Técnica).

Para quem não está familiarizado, o amortecedor de massa, ou Tuned Mass Damper (TMD), é uma tecnologia utilizada em edifícios altos para reduzir as oscilações causadas por ventos fortes ou até mesmo pequenos tremores de terra.
Funciona como um contrapeso gigante que se move em oposição ao movimento do edifício, dissipando a energia e minimizando a sensação de balanço. Ajudará muito na segurança estrutural e, principalmente, no conforto dos moradores, que não sentirão os efeitos de ventos intensos ou outras vibrações.
Uma visão abrangente do Senna Tower
Explorar as plantas do Senna Tower mostra como é impressionante a quantidade de detalhes e o rigor técnico envolvidos em um projeto desse porte. Cada documento e planta é uma peça para a construção do maior arranha-céu do mundo.
É importante ressaltar que o que vimos aqui é só uma parte do vasto material disponível. Existem muitos outros documentos técnicos que aprofundam ainda mais o que tem neste empreendimento grandioso, desde estudos de viabilidade até projetos complementares, o que demonstra a complexidade e a seriedade com que cada etapa foi planejada e executada.

